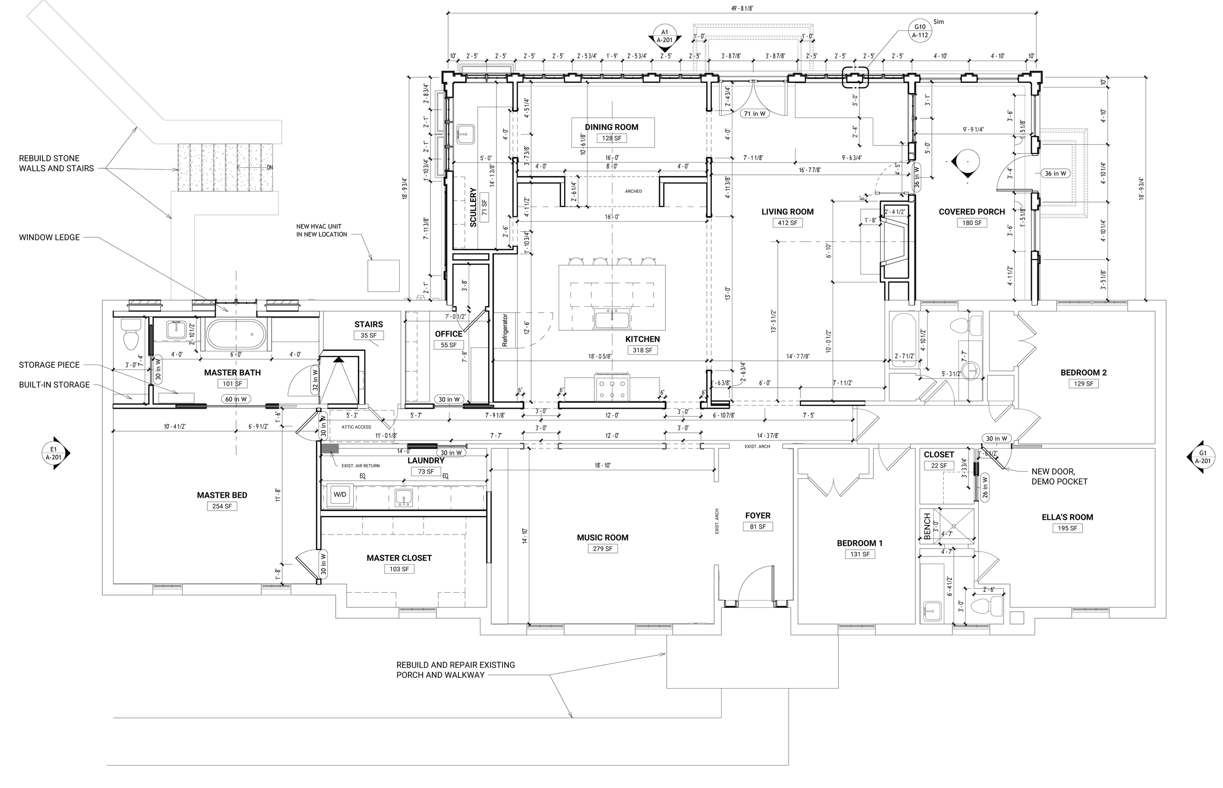
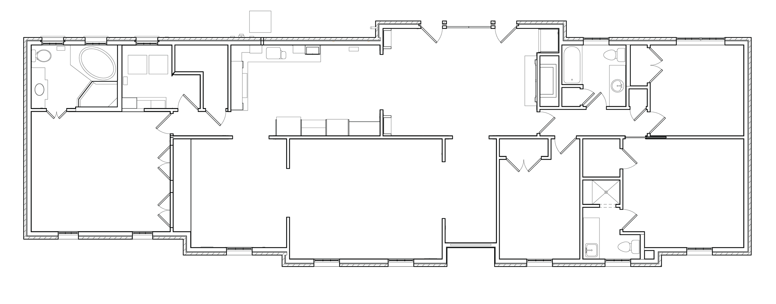
RADNOR REMODEL & ADDITION ADDITION & INTERIOR REMODEL FIRM: THE KINGSTON GROUP LOCATION: NASHVILLE TN View fullsize View fullsize View fullsize View fullsize View fullsize