© DUSTIN MURPHY

Instagram @dustinmurphydesign

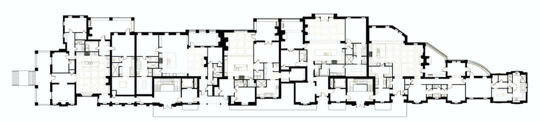
THE ARLINGTON AT WEST MAIN

NEW CONSTRUCTION

FIRM: STUDIO 8 DESIGN

PROJECT LOCATION: FRANKLIN TN

Concept Rendering
Garage Level
First Floor
Second Floor
East Elevation
West Elevation